Affordable Dual Key in TAS

Rooming
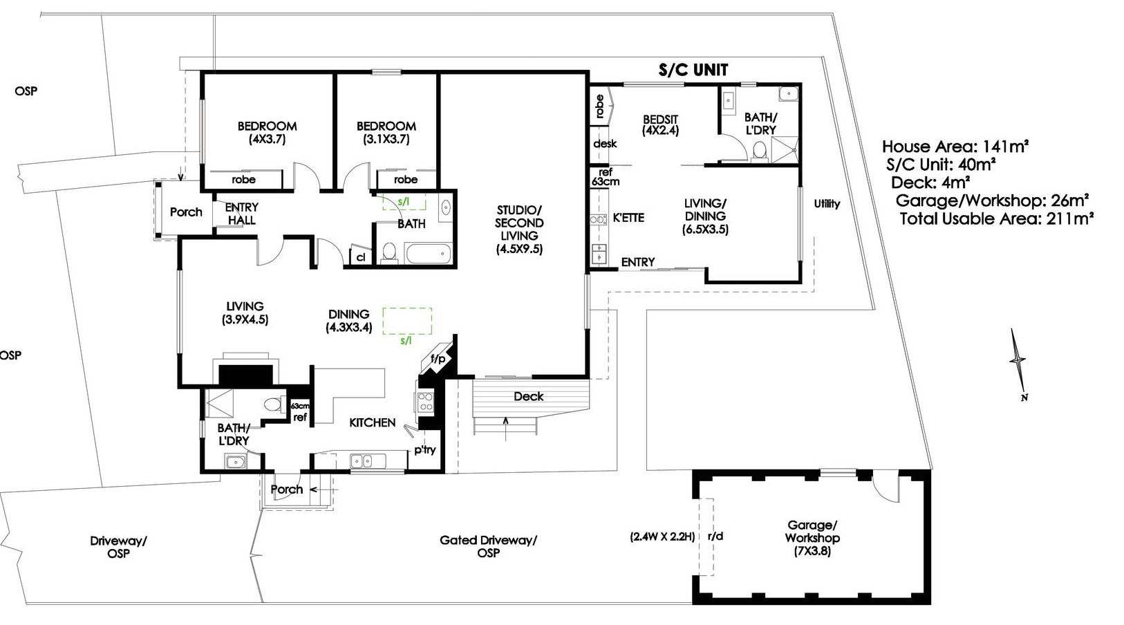
3 Bed | 3 Bath | 4 Car
 Rent: 
$1,000 per week
 Land Size: 
538m²
6 km from Hobart CBD
20 km to Hobart Airport
Close to public transport
Close to shopping
Offers over $795,000+

Request more info & Send me Properties like this

Success Icon - Realtor X Webflow Template
We have received your request..
We will get back to you within 24-48 hours.

Thanks heaps!
Oops! Something went wrong.

This property or other similar established properties can be acquired by our Inner Circle membership. This property may be available or it may have been acquired by our client. Submit an enquiry to learn more.

Highlights


  • Affordable High-Yield Investment – Moonah, TAS

    An exceptionally affordable entry into the Hobart market with strong rental yield potential and upside from both rent and capital growth.

    This property presents as a solid investment proposition  — a well-established, high-demand suburb with good amenities, strong rental demand and proximity to major employment nodes, transport, and services.

    Why this stands out:
    • Attractive price point relative to rental returns
    • Rental yield opportunity: current rents versus purchase price suggests above-average yield compared to typical Hobart stock
    • Deep tenant demand  — historically a tight rental market
    • Positioned for capital growth, aligned with broader Hobart growth trends
    • Simple, easy-to-manage asset with minimal maintenance complexity
    Investment appeal:
    • Ideal for investors seeking high income-return focus
    • Strong demographic / rental fundamentals underpinning both income and growth
    • Works well as a core income asset in diversified portfolios
    This is a compelling value-oriented investment that pairs yield strength with long-term growth potential in a proven rental hub.

    • Located just 6 km from Hobart CBD and approx. 20 km to Hobart Airport, offering excellent proximity for commuters and city-based professionals.
    • Bustling local lifestyle precinct with cafes, supermarkets, specialty shops, and retail outlets, plus quick access to major shopping centres nearby.
    • Strong education zone with nearby primary and secondary schools, and within reach of TasTAFE campuses and the University of Tasmania.
    • Surrounded by parks and green space including Prince of Wales Bay Reserve, walking trails, and sports fields, ideal for families and outdoor recreation.
    • Proximity to Royal Hobart Hospital and several medical clinics makes it an attractive base for healthcare workers and long-term tenants.
    • Thriving dining and café culture, known for diverse international eateries, breweries, and artisan coffee spots, driving lifestyle appeal for younger renters and professionals.
    • Well-connected with frequent Metro bus services, and close to Brooker Highway, providing seamless access to the city and northern suburbs.
    • Low vacancy rates and consistently high rental demand, supported by inner-ring location and affordability relative to the CBD.
    • Tight housing supply with older homes being renovated or redeveloped, creating strong value-add potential for investors.
    • Close to major employment hubs including Hobart CBD, retail parks, and light industrial zones, ensuring ongoing rental interest.
    • Area is benefitting from urban renewal and infrastructure upgrades, improving streetscapes, amenities, and overall livability.

    Recommended Due Diligence

    Building & pest inspections, Title search, Flood, Bushfire, Easements, Soil type, Water & sewer, Stormwater, Rooming compliance, Supply Demand stats review, Vacancy rates stats review, Contract review, Tenant agreement review.

    Our Inner Circle membership includes Due Diligence, Search, Data Research, Strategy forming, and End to End Support.

    Offers over $795,000+

    Enquire about Deal Availability and Inner Circle program

    Success Icon - Realtor X Webflow Template
    We have received your request.
    We will get back to you within 24-48 hours.

    Thanks Heaps!!
    Oops! Something went wrong.