
.webp)




.webp)
.webp)
.webp)
.webp)
.webp)



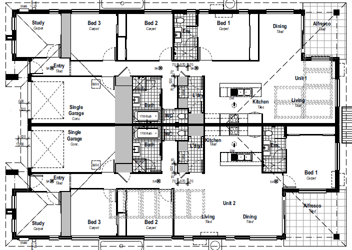
This property or other similar properties can be acquired by our Inner Circle membership. This property may be available or it may have been acquired by our client. Submit an enquiry to learn more.
Wadalba is a suburb on the Central Coast of New South Wales, Australia, here is a general overview of Wadalba:
Suburb Overview: Wadalba is a residential suburb located in the Wyong Shire on the Central Coast of New South Wales. The suburb has experienced growth and development in recent years, with new housing estates contributing to its expansion.
Transportation: Wadalba is accessible by road, with major roads in the area including Pacific Highway. Public transportation options, such as buses, serve the suburb and connect it to other parts of the Central Coast.
Schools: Wadalba has educational facilities, including Wadalba Community School, which caters to students from kindergarten to Year 12. This school serves the local community.
Parks and Recreational Areas: The suburb likely features parks and recreational spaces for residents to enjoy outdoor activities. Local parks may offer play areas, sports facilities, and green spaces.
Shopping: While Wadalba itself may have local shops, residents often have access to larger shopping centers and retail precincts in nearby suburbs for a more extensive range of shopping options.
Infrastructure: Residents of Wadalba have access to essential infrastructure, including utilities, healthcare facilities, and educational institutions. The Central Coast region, in general, offers a range of services to support the community.