Maddington WA
Dual Key in The Grove Estate Maddington WA
.webp)
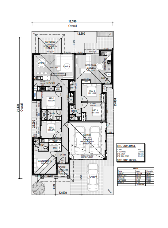
Dual Occupancy

3+2 Beds | 2+1 Bath | 2 Garages

Rent:
$1,200 per week
.webp)
Land Size:
389m2
.webp)
Total New Homes:
.webp)
Area Size:
.webp)
18 km to Perth CBD
.webp)
14 km to Perth airport

Close to schools

Close to public transport

Close to shopping
Full Turnkey Package $988,490
Request latest price list & info pack
This property or other similar properties can be acquired by our Inner Circle membership. This property may be available or it may have been acquired by our client. Submit an enquiry to learn more.
Estate Highlights
- Location & Access: ~18 km to Perth CBD, ~14 km to airport. Easy access to Tonkin, Albany & Roe Highways. Close to Maddington Train Station & bus routes.
- Shopping & Entertainment: Near Maddington Central, Albany Hwy dining strip, and Westfield Carousel (10 mins).
- Education: Close to East Maddington Primary, Maddington Primary & Yule Brook College. Multiple childcare options nearby.
- Parks & Recreation: Park-front lots, walking trails, Harmony Fields, skate park, and Orange Grove open spaces.
- Medical: GP clinics within 5–10 mins. Armadale Health Service ~15 mins away.
- Amenities: NBN-ready, landscaped green space, internal roads, family-friendly design.
- Transport:Train station nearby with CBD access. Bus links to major hubs. Tonkin Hwy upgrades underway.
- Market Insight: Low land supply, high rental demand, strong appeal for investors and first-home buyers.
- Employment Access: Near Kenwick, Welshpool & Kewdale industrial hubs. Easy CBD commute.
- Growth & Infrastructure: Population growth with urban infill. Ongoing upgrades to roads, transport & retail precincts.